Overview
- Updated On:
- 30 marca, 2026
- 42 m2
- Year Built: 2024
Description
Sprzedam bezpośrednio, bez agencji.
Mieszkanie 2-pokojowe, znajdujące się na osiedlu Piastów.
Lokalizacja: os. Piastów 76
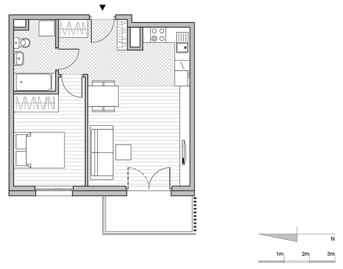
Powierzchnia: 42,04 m2
Pietro: 7
Rok budowy: 2024
Winda w budynku: dwie
Ogrzewanie: Miejskie
Pomieszczenia:
– Hol 5,72 m2
– Salon z aneksem kuchennym 21,36 m2,
– Sypialnia 10,68 m2,
– Łazienka 4,28 m2.
– Balkon 4,79 m2
Świeżo wykończone, gotowe do zamieszkania.
Kuchnia wyposażona jest w nowe meble i sprzęt AGD:
– Płyta indukcyjna ELECTROLUX EIV634 SLIM-FIT
– Zmywarka ELECTROLUX EEA43200L QuickSelect 600 45 cm
– Piekarnik ELECTROLUX EOF3C50H SurroundCook 600 Elektryczny Czarny A
– Lodówka Electrolux TwinTech No Frost 600 CustomFlex
– Okap ELECTROLUX LFG716W Biały 580m3/h 67dB klasa A Zdalne sterowanie
– Zlewozmywak granitowy z ociekaczem PYRAMIS + bateria + wkładka ociekowa + dozownik
Nowa armatura w łazience:
– Wanna z prysznicem
– Umywalka z szafką
– WC
Podwieszany sufit w łazience. Podłoga z paneli winylowych.
Mieszkanie w bardzo dobrej lokalizacji:
– przystanki MPK, najbliższa pętla tramwajowa 700 m / 10 min
– stacja kolejowa Kraków Piastów – 600m / 8 minut (7 minut do stacji Dworzec Główny)
– osiedle znajduje się przy północnej obwodnicy Krakowa – 650 m / 2 min samochodem
W okolicy:
żabka – 450 m
żłobek – 250 m
lidl – 600 m
biedronka – 600 m
restauracja – 550 m
piekarnia – 500 m
market point – 650 m
Informacje dla agencji nieruchomości – nie rozważam współpracy, nie przewiduję prowizji dla agencji.
*
For sale directly by owner, no agency.
A 2-room apartment located in the Piastów housing estate.
Location: os. Piastów 76
Area: 42.04 m²
Floor: 7
Year of construction: 2024
Elevators in building: two
Heating: district heating
Layout:
Hall – 5.72 m²
Living room with kitchen – 21.36 m²
Bedroom – 10.68 m²
Bathroom – 4.28 m²
Balcony – 4.79 m²
Recently finished and ready to move in.
The kitchen is equipped with new furniture and household appliances:
– Induction hob ELECTROLUX EIV634 SLIM-FIT
– Dishwasher ELECTROLUX EEA43200L QuickSelect 600, 45 cm
– Oven ELECTROLUX EOF3C50H SurroundCook 600, electric, black, energy class A
– Refrigerator Electrolux TwinTech No Frost 600 CustomFlex
– Cooker hood ELECTROLUX LFG716W, white, 580 m³/h, 67 dB, energy class A, remote control
– Granite sink with drainer PYRAMIS + faucet + draining insert + soap dispenser
New bathroom fittings:
– Bathtub with shower
– Washbasin with cabinet
– Toilet
Suspended ceiling in the bathroom. Vinyl panel flooring.
Excellent transport connections:
– Bus stops nearby, tram terminus 700 m / 10 min
– Kraków Piastów train station – 600 m / 8 min
– Located near the northern ring road of Kraków – 650 m / 2 min by car
Nearby amenities:
Żabka – 450 m
Nursery – 250 m
Lidl – 600 m
Biedronka – 600 m
Restaurant – 550 m
Bakery – 500 m
Market Point – 650 m
- Principal and Interest
- Property Tax
- HOA fee


























