wolnostojący

Sprzedam nowy dom, Proszowice ul. Słoneczna

495.000 zł
Favorite

Overview

  • Updated On:
  • 16 kwietnia, 2026
  • 128 m2
  • Year Built: 2025

Description

#nowydom #sprzedam #proszowice

Nowoczesny Dom Jednorodzinny w Proszowicach – Bez Prowizji! Bezpośrednio od Właściciela, stan surowy otwarty

Marzysz o własnym domu w cichej i spokojnej okolicy, z dala od miejskiego zgiełku, ale blisko pełnej infrastruktury? Ta oferta jest dla Ciebie!

Oferujemy przestronny i nowoczesny dom jednorodzinny z użytkowym poddaszem i garażem, położony na działce o powierzchni około 5,8 ara w Proszowicach, przy ul. Słonecznej.

Dlaczego ten dom jest idealny?

Funkcjonalny układ pomieszczeń: Przestronny salon z jadalnią, jasna kuchnia, spiżarnia, 4 sypialnie, 2 łazienki, garderoba i pomieszczenie gospodarcze – wszystko zaprojektowane z myślą o komforcie rodziny.

Ogrzewanie pompą ciepła: ekologiczne i ekonomiczne rozwiązanie, zaplanowane już na etapie budowy.

Nowoczesna bryła: Atrakcyjny projekt, który łączy estetykę z funkcjonalnością.

Garaż w bryle budynku: 19,97 m² – idealne miejsce na samochód i dodatkowe przechowywanie.

Cisza i spokój: Kameralna okolica domów jednorodzinnych, z dogodnym dojazdem i szybkim dostępem do sklepów, szkoły czy usług.

Szczegółowy rozkład pomieszczeń:

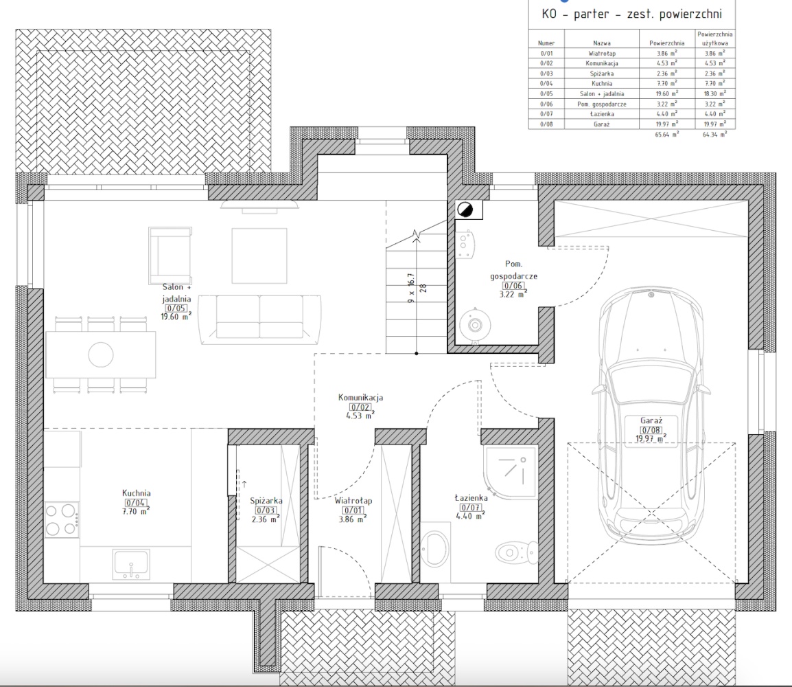
Parter:
Wiatrołap: 3,86 m²
Komunikacja: 4,53 m²
Spiżarka: 2,36 m²
Kuchnia: 7,70 m²
Salon z jadalnią: 19,60 m²
Pomieszczenie gospodarcze: 3,22 m²
Łazienka: 4,40 m²
Garaż: 19,97 m²

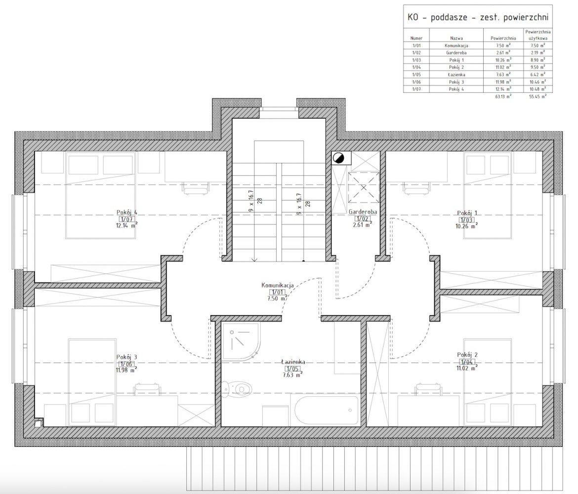
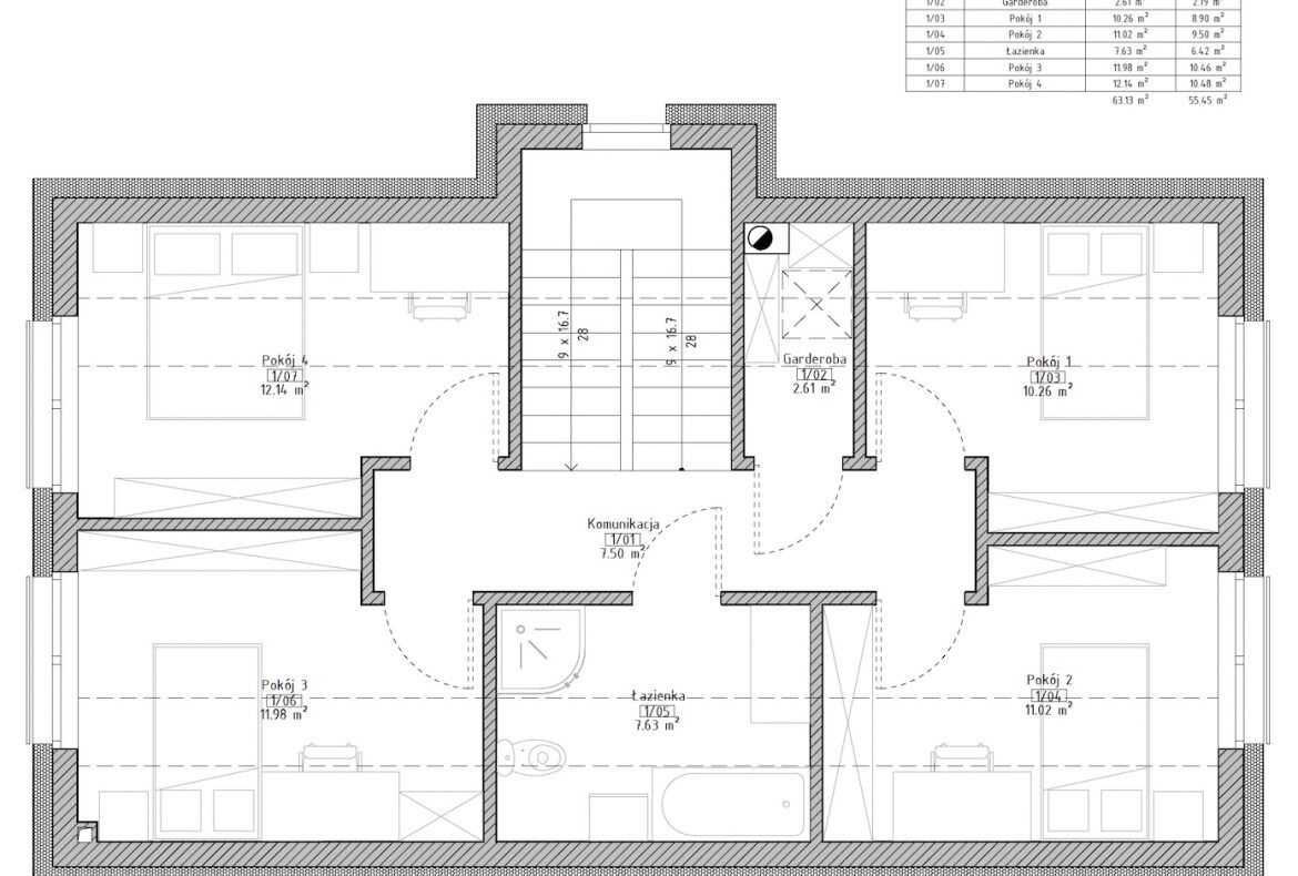
Poddasze:
Komunikacja: 7,50 m²
Garderoba: 2,61 m²
Pokój 1: 10,26 m²
Pokój 2: 11,02 m²
Pokój 3: 11,98 m²
Pokój 4: 12,14 m²
Łazienka: 7,63 m²

Szczegóły inwestycji:

Stan surowy otwarty: Możesz samodzielnie zaprojektować wnętrze zgodnie ze swoimi potrzebami.

Z inwestycji dostępny jest tylko dom nr 2, pozostałe zostały już sprzedane.

Bez prowizji! Bez pośredników!
Nie czekaj – zrealizuj swoje marzenie o nowoczesnym i wygodnym domu, idealnym dla Twojej rodziny! Zadzwoń już teraz i zarezerwuj termin prezentacji, zanim ktoś Cię uprzedzi.

Nie przegap tej wyjątkowej okazji – idealny dom w Proszowicach czeka na Ciebie!

Energy Class: A+
Energy class A+
A+
A
B
C
D
E
F
G
H
Address:
Zip: 32-100
Country: Poland
Open In Google Maps
Property Id : 200760
Price: 495.000 zł
Property Size: 128 m2
Rooms: 6
Year Built: 2025
Other Features
piętro: /
rok budowy: 2025
rynek:
wolnostojący
2,537.96
per month
  • Principal and Interest
  • Property Tax
  • HOA fee
1,919.21
sob. 18 kwi
niedz. 19 kwi
pon. 20 kwi
wt. 21 kwi
śr. 22 kwi
czw. 23 kwi
pt. 24 kwi
sob. 25 kwi
niedz. 26 kwi
pon. 27 kwi
In Person
Video Chat
Your information

Contact Me

Call WhatsApp

Property Reviews

zzz
Write a Review
Your Rating & Review

Similar Listings

sprzedaż
wolnostojący

Dom w Witkowicach na sprzedaż!

400 m2
Biuro nieruchomości DKB INVEST oferuje na sprzedaż kameralny, przytulny budynek w Krakowie, usytuowa ...
3.500.000 zł
sprzedaż
wolnostojący

Nieruchomość w miejscowości Spytkowice

122 m2
Syndyk masy upadłości Wiesławy Konieczny-Kawulok, osoby fizycznej nieprowadzącej działalności gospod ...
154.772 zł
sprzedaż
willa

Klimatyczny dom z płazów w Białce Tatrzański...

194 m2
Rodzinny azyl w górach – klimatyczny dom z płazów w Białce Tatrzańskiej z widokiem na Tatry! Na sprz ...
2.490.000 zł
sprzedaż
wolnostojący

Dom z dużą działką, Ryglice, p. tarnowski, 1...

75 m2
Zapraszamy do zapoznania się z ofertą sprzedaży przytulnego i jednocześnie funkcjonalnego domu zloka ...
569.900 zł

Compare Listings