Blok

Mieszkanie 4pokoje, 78,2m2 Przy ul. Radiowa

899.000 zł
Favorite

Overview

  • Updated On:
  • 15 kwietnia, 2026
  • 78 m2
  • Year Built: 1981

Description

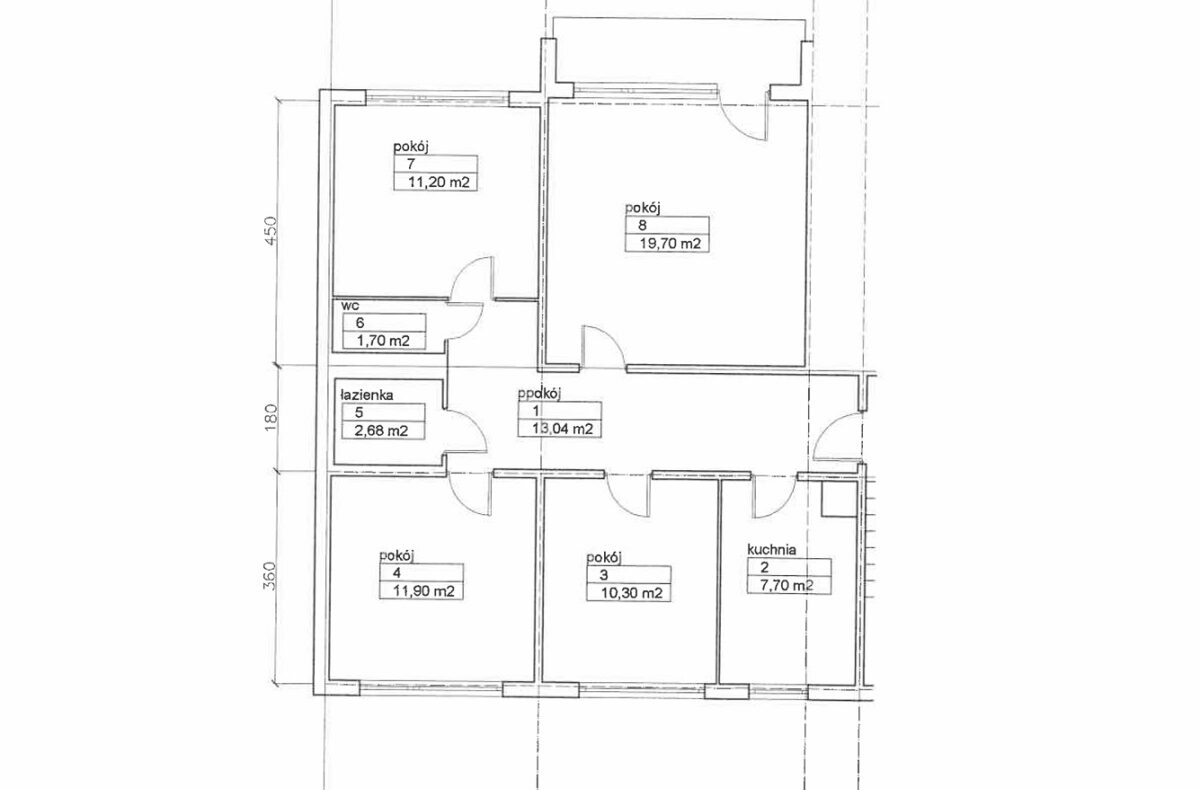
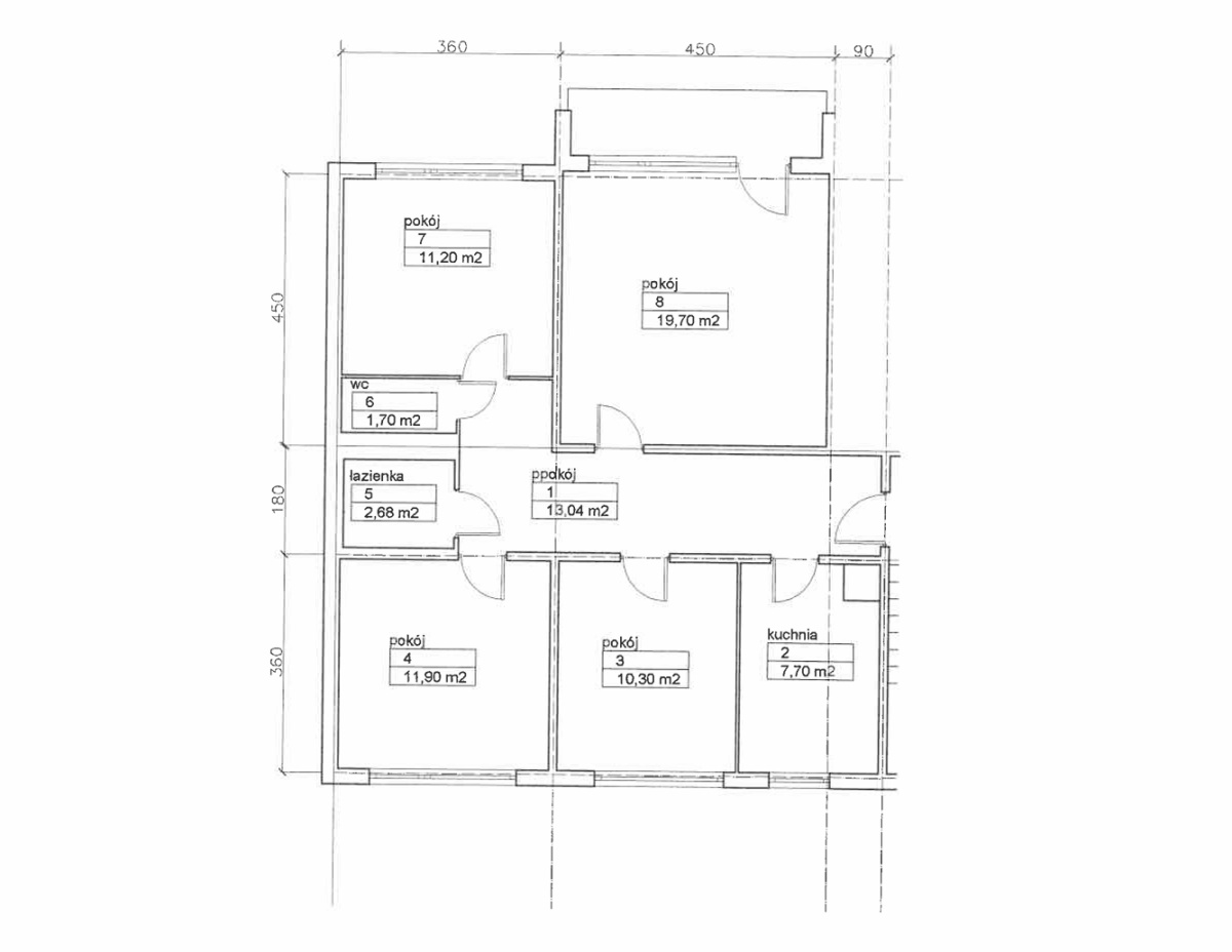
M4 | Dwustronne mieszkanie 78,2m2 przy ul. Secemińska 9.

PODSTAWOWE INFORMACJE:
+ Piętro 9/11
+ Funkcjonalne mieszkanie 4-pokojowe z dużym balkonem.
+ Ekspozycja lokalu: północ – południe
+ Okna z kuchni, dwóch sypialni wychodzą na ciche podwórko i plac zabaw, z jednej sypialni i salony na ul. Wrocławską.
+ Komórka lokatorska )

MIESZKANIE:
– Salon m2 20,1m2 + balkonem
– Sypialnia 10m2
– Sypialnia 11,2m2
– Sypialnia 11m2
– Kuchnia 6,5m2
– Łazienka 2,6m2
– Toaleta 1m2
– Korytarz 18m2
– Komórka lokatorska

OKOLICA:
Biedronka po drugiej stronie ul. Wrocławskiej – 2min piechotą
Kawiarnie i restauracje w odległości kilku minut od mieszkania
Uczelnia WAT – 10 min piechotą
Galeria Bemowo i Wola Park 9 min samochodem

Komunikacja:
Dywizjonu 303 na ul. Powstańców Śląskich – pieszo 5min
Orlich Gniazd 05 na ul. Radiowej – pieszo 5min
PKP Siodlarska 02 – 5min pieszo
CENA:
899 tys zł w tym komórka lokatorska.
czynsz do spółdzielni: ok. 700 zł miesięcznie

STAN PRAWNY:
Spółdzielczo własnościowe z KW. Grunty uregulowane.

Zapraszam na prezentację!

Robert Drelowiec 73o 2I6 2o1

Energy Class: A+
Energy class A+
A+
A
B
C
D
E
F
G
H
Address:
Zip: 03
Country: Poland
Open In Google Maps
Property Id : 190330
Price: 899.000 zł
Property Size: 78 m2
Rooms: 4
Year Built: 1981
Other Features
Blok
piętro: 10/10
rok budowy: 1981
rynek:
4,609.35
per month
  • Principal and Interest
  • Property Tax
  • HOA fee
3,485.60
pon. 20 kwi
wt. 21 kwi
śr. 22 kwi
czw. 23 kwi
pt. 24 kwi
sob. 25 kwi
niedz. 26 kwi
pon. 27 kwi
wt. 28 kwi
śr. 29 kwi
In Person
Video Chat
Your information

Contact Me

Call WhatsApp

Property Reviews

zzz
Write a Review
Your Rating & Review

Similar Listings

sprzedaż
kamienica

PIĘKNE 2 POKOJE,PO REMONCIE,BALKON,PIWNICA,M...

49 m2
STANDARD – mieszkanie po gruntownym remoncie obejmującym również wymianę instalacji – ws ...
789.000 zł
sprzedaż
Blok

2 pokoje, Stara Ochota, winda, ul. Grójecka ...

47 m2
Prezentujemy Państwu mieszkanie na sprzedaż na Starej Ochocie przy ul. Grójeckiej 70. Do zasiedlenia ...
710.000 zł
sprzedaż
Apartamentowiec

Warszawa – Wilanów – ul. Sarmacka – 54...

54 m2
Cena: 1 195 000 zł (do negocjacji) Nieruchomość: Proponujemy Państwu piękny unikatowy dwupokojowy ap ...
1.195.000 zł
sprzedaż
Blok

NOVY POMIAN | Mieszkania 2-4 pok | Lokale Us...

72 m2
Szukasz wyjątkowego mieszkania, które przekroczy Twoje oczekiwania? Przedstawiamy NOVY POMIAN – ...
554.050 zł

Compare Listings

Kontakt 730216201