Lokal biurowo-usługowy na parterze

5.915 zł
Favorite

Overview

  • Updated On:
  • 11 kwietnia, 2026
  • 75 m2

Description

Wynajem bezpośrednio od właściciela, bez pośrednika, bez prowizji.

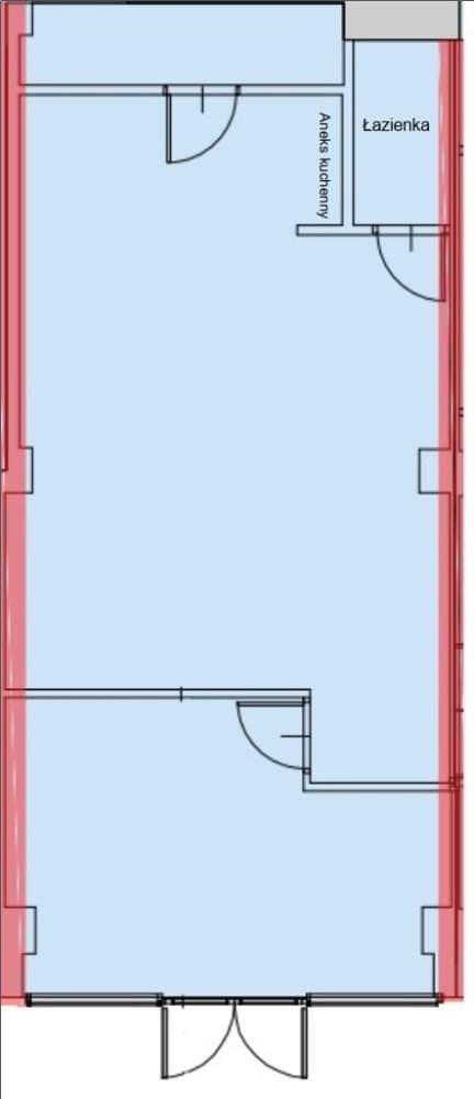
Do wynajęcia lokal biurowo-usługowy o powierzchni 75,37 m2, zlokalizowany na parterze biurowca na ul. Wadowickiej 6. Wejście do lokalu bezpośrednio z zewnątrz. Całość składa się z trzech pomieszczeń i toalety.

Udogodnienia:
– wygodny dojazd MPK
– możliwość wynajęcia miejsc parkingowych
– ochrona + monitoring nieruchomości
– sprzątanie części wspólnych
– odśnieżanie chodników i parkingów
– infrastruktura teleinformatyczna
– recepcja
– w budynku sklep spożywczy, drogeria, apteka, przychodnia Lux Med, sklep komputerowy, poczta, siłownia, przedszkole

Pow. 75,37 m2
Czynsz: 13,50 EUR/m2 + opłata eksploatacyjna: 21,50 PLN/m2
Długość umowy: minimum 1 rok, maksymalnie do końca 2028 roku.

Lokal dostępny od zaraz.

Energy Class: A+
Energy class A+
A+
A
B
C
D
E
F
G
H
Address:
Zip: 30
Country: Poland
Open In Google Maps
Property Id : 199575
Price: 5.915 zł
Property Size: 75 m2
Rooms: 4
Other Features
piętro: 0/1
rok budowy:
rynek:
30.33
per month
  • Principal and Interest
  • Property Tax
  • HOA fee
22.93
wt. 14 kwi
śr. 15 kwi
czw. 16 kwi
pt. 17 kwi
sob. 18 kwi
niedz. 19 kwi
pon. 20 kwi
wt. 21 kwi
śr. 22 kwi
czw. 23 kwi
In Person
Video Chat
Your information

Contact Me

Call WhatsApp

Property Reviews

zzz
Write a Review
Your Rating & Review

Similar Listings

wynajem

Lokal biurowy na VI piętrze

783 m2
Wynajem bezpośrednio od właściciela, bez pośrednika, bez prowizji. Do wynajęcia lokal biurowy o powi ...
44.883 zł
wynajem

Lokale usługowo handlowe w Brzesku

192 m2
OSTATNIE WOLNE LOKALE! Lokale użytkowe na wynajem w Brzesku przy ul. Solskiego 15 w nowopowstałym bu ...
8.640 zł
wynajem

Lokal biurowy w świetnej lokalizacji

506 m2
Wynajem bezpośrednio od właściciela, bez pośrednika, bez prowizji. Do wynajęcia lokal biurowy o powi ...
27.968 zł
wynajem

Lokal biurowy z antresolą

196 m2
Wynajem bezpośrednio od właściciela, bez pośrednika, bez prowizji. Do wynajęcia lokal biurowy o powi ...
9.956 zł

Compare Listings

Kontakt 604924390