budowlana

Działka PNB wielorodzinny Kraków Podgórze PUM 809

3.880.000 zł
Favorite

Overview

  • Updated On:
  • 26 marca, 2026
  • 824 m2

Description

OFERTA SPRZEDAŻY – działka z prawomocnym pozwoleniem na budowę

Na sprzedaż atrakcyjna działka inwestycyjna z prawomocnym pozwoleniem na budowę budynku mieszkalnego wielorodzinnego, zlokalizowana przy ul. Trybuny Ludów 15 w Krakowie – jednej z głównych ulic miasta.

Nieruchomość sprzedawana z kompletną dokumentacją projektową (PAB + PZT i wykonanym zjazdem publicznym), terenem w całości ogrodzonym z bramą wjazdową, co pozwala na natychmiastowe rozpoczęcie inwestycji.

Szczegóły inwestycji: „BUDYNEK MIESZKALNY WIELORODZINNY Z USŁUGAMI NA PARTERZE I JEDNOKONDYGNACYJNYM GARAŻEM PODZIEMNYM”

LOKALIZACJA: Kraków, Wola Duchacka, ul. Trybuny Ludów
DZIAŁKA NR 276/6 obr. 0049 Podgórze, o powierzchni 824 m2
STAN PRAWNY: pozwolenie na budowę wydane – ostateczne, bez obciążeń kredytem
KSZTAŁT DZIAŁKI: regulany – prostokąt
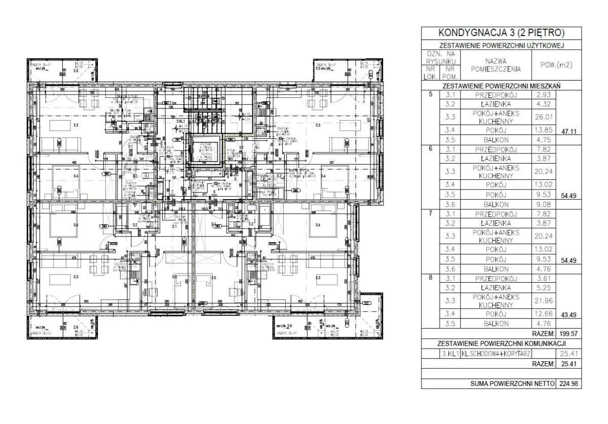
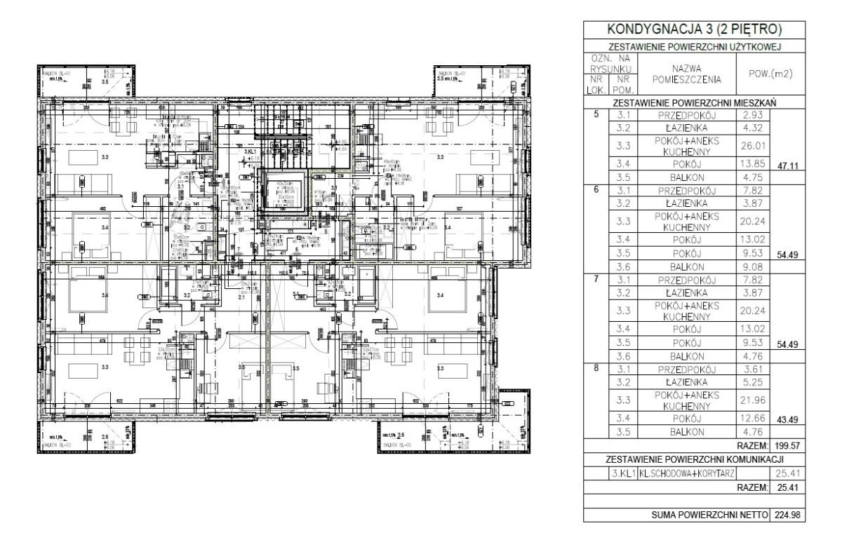
ILOŚĆ KONDYGNACJI: jednokondygnacyjny garaż podziemny, 4 kondygnacje nadziemne
ILOŚĆ PUM: 809,3 m2
ILOŚĆ MIESZKAŃ: 12
POWIERZCHNIA LOKALI MIESZKALNYCH: 599,68 m2
ILOŚĆ LOKALI USŁUGOWYCH: 2
POWIERZCHNIA LOKALI USŁUGOWYCH: 209,62 m2
WINDA: tak (dostosowana do osób z niepełnosprawnościami)
ILOŚĆ MIEJSC POSTOJOWYCH W GARAŻU PODZIEMNYM: 12
ILOŚĆ ZEWNĘTRZNYCH MIEJSC POSTOJOWYCH: 4
DOSTĘP DO DROGI: bezpośredni dostęp do drogi publicznej
MEDIA: woda, kanalizacja sanitarna i deszczowa, energia elektryczna, MPEC, telekomunikacja
DODATKOWE INFORMACJE: wykonany prąd budowlany, wykonany i odebrany zjazd z drogi publicznej na działkę, dodatkowo udział w bocznej działce drogowej 277/3 i 277/4, zaprojektowana infrastruktura komunikacyjna piesza i kołowa

CENA: 3 880 000 zł

KONTAKT:
Oferta od właściciela
tel. 888_068_068, tel. 604_147_500

Energy Class: A+
Energy class A+
A+
A
B
C
D
E
F
G
H
Address:
Zip: 30
Country: Poland
Open In Google Maps
Property Id : 196595
Price: 3.880.000 zł
Property Size: 824 m2
Other Features
budowlana
piętro: /
rok budowy:
rynek:
19,893.53
per month
  • Principal and Interest
  • Property Tax
  • HOA fee
15,043.53
wt. 14 kwi
śr. 15 kwi
czw. 16 kwi
pt. 17 kwi
sob. 18 kwi
niedz. 19 kwi
pon. 20 kwi
wt. 21 kwi
śr. 22 kwi
czw. 23 kwi
In Person
Video Chat
Your information

Contact Me

Call WhatsApp

Property Reviews

zzz
Write a Review
Your Rating & Review

Similar Listings

sprzedaż
przemysłowa

Działka przemysłowa hala magazyn produkcja K...

24,100 m2
Sprzedam jako właściciel nieruchomości gruntowe w Bodzanowie, gmina Biskupice, powiat Wielicki. Powi ...
5.300.000 zł
sprzedaż
rolno-budowlana

działka rolno-budowlana

11,100 m2
Do sprzedania działka rolno-budowlana o powierzchni 1,11 ha położona w Zadrożu przy drodze wojewódzk ...
300.000 zł
sprzedaż
rekreacyjna

działka rekreacyjna

13,224 m2
Sprzedam działkę rekreacyjną częściowo zalesioną w Obszarze Natura 2000 Śladowie gmina Słaboszów o p ...
90.000 zł
sprzedaż
budowlana

Działka budowlana, gm. Wieliczka, Dobranowic...

1,000 m2
DZIAŁKA BUDOWLANA 10 AR Z WIDOKIEM – GM. WIELICZKA – 13 KM OD KRAKOWA Na sprzedaż atrakc ...
265.000 zł

Compare Listings