Blok

| bezpośrednio | wysoki standard | garderoba |

798.000 zł
Favorite

Overview

  • Updated On:
  • 19 kwietnia, 2026
  • 47 m2
  • Year Built: 1972

Description

OFERTA PRYWATNA – BEZPOŚREDNIO OD WŁAŚCICIELA – BRAK PROWIZJI

Sprzedam lub zamienię
Świeżo wyremontowane mieszkanie zlokalizowane przy al. Dwudziestolatków 1A (na pograniczu dzielnicy Ochota i Włochy).

Podstawowe informacje:
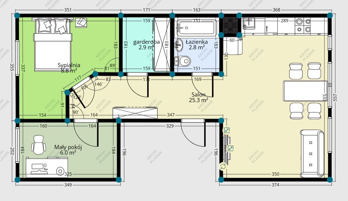
– liczba pokoi: 3
– metraż: 47 m2
– parter
– piwnica 3m2
– garderoba
– stan techniczny: po remoncie
– ogrzewanie: c.o. miejskie
– woda ciepła: z sieci miejskiej
– czynsz ok 700 PLN
– pełna własność z możliwością kredytowania

Zakres przeprowadzonych prac remontowych:
– zmiana układu funkcjonalnego
– wymieniona instalacja elektryczna oraz hydrauliczna
– drzwi wewnętrzne oraz zewnętrzne
– wylewki oraz gładzie
– wysokiej jakości panele podłogowe (AC5) oraz listwy MDF
– pełny remont łazienki z WC podwieszanym, wanną z funkcją prysznica
– meble kuchenne, garderoba, szafa w korytarzu przygotowana na wymiar przez stolarza– zakup sprzętu AGD w gestii kupującego

Cena nieruchomości nie zawiera elementów wyposażenia (dodatkowo płatne w cenie 20 000 PLN)

Lokalizacja:
– 200m do przystanku tramwajowego
– 200m do Parku Kotańskiego z boiskami, placem zabaw oraz wybiegiem dla psów
– tuż pod blokiem liczne sklepy, paczkomaty, apteka

W razie dodatkowych pytań, proszę o telefon lub sms.
Jeżeli nie odbiorę to odzwonię.
Pozdrawiam, Dominik

DODATKOWO
• Oferuję gotówkowy odkup każdej nieruchomości na najlepszych warunkach!
Powyższa oferta ma charakter informacyjny i nie stanowi oferty handlowej w rozumieniu art. 66 §1 Kodeksu Cywilnego

Energy Class: A+
Energy class A+
A+
A
B
C
D
E
F
G
H
Address:
Zip: 03
Country: Poland
Open In Google Maps
Property Id : 201736
Price: 798.000 zł
Property Size: 47 m2
Rooms: 3
Year Built: 1972
Other Features
Blok
piętro: 0/4
rok budowy: 1972
rynek:
4,091.50
per month
  • Principal and Interest
  • Property Tax
  • HOA fee
3,094.00
pon. 20 kwi
wt. 21 kwi
śr. 22 kwi
czw. 23 kwi
pt. 24 kwi
sob. 25 kwi
niedz. 26 kwi
pon. 27 kwi
wt. 28 kwi
śr. 29 kwi
In Person
Video Chat
Your information

Contact Me

Call WhatsApp

Property Reviews

zzz
Write a Review
Your Rating & Review

Similar Listings

sprzedaż
kamienica

PIĘKNE 2 POKOJE,PO REMONCIE,BALKON,PIWNICA,M...

49 m2
STANDARD – mieszkanie po gruntownym remoncie obejmującym również wymianę instalacji – ws ...
789.000 zł
sprzedaż
Blok

widna kuchnia, loggia 3m2, piwnica 4m2. Wsch...

49 m2
SPRZEDAŻ PRYWATNA (bez prowizji) Sprzedam przytulne mieszkanie na ulicy Karola Szwanke 6. Mieszkanie ...
245.000 zł
sprzedaż
Apartamentowiec

Warszawa – Wilanów – ul. Sarmacka – 54...

54 m2
Cena: 1 195 000 zł (do negocjacji) Nieruchomość: Proponujemy Państwu piękny unikatowy dwupokojowy ap ...
1.195.000 zł
sprzedaż
Blok

NOVY POMIAN | Mieszkania 2-4 pok | Lokale Us...

72 m2
Szukasz wyjątkowego mieszkania, które przekroczy Twoje oczekiwania? Przedstawiamy NOVY POMIAN – ...
554.050 zł

Compare Listings