Overview
- Updated On:
- 16 lutego, 2026
- 59 m2
- Year Built: 2011
Description
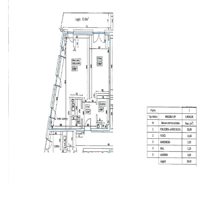
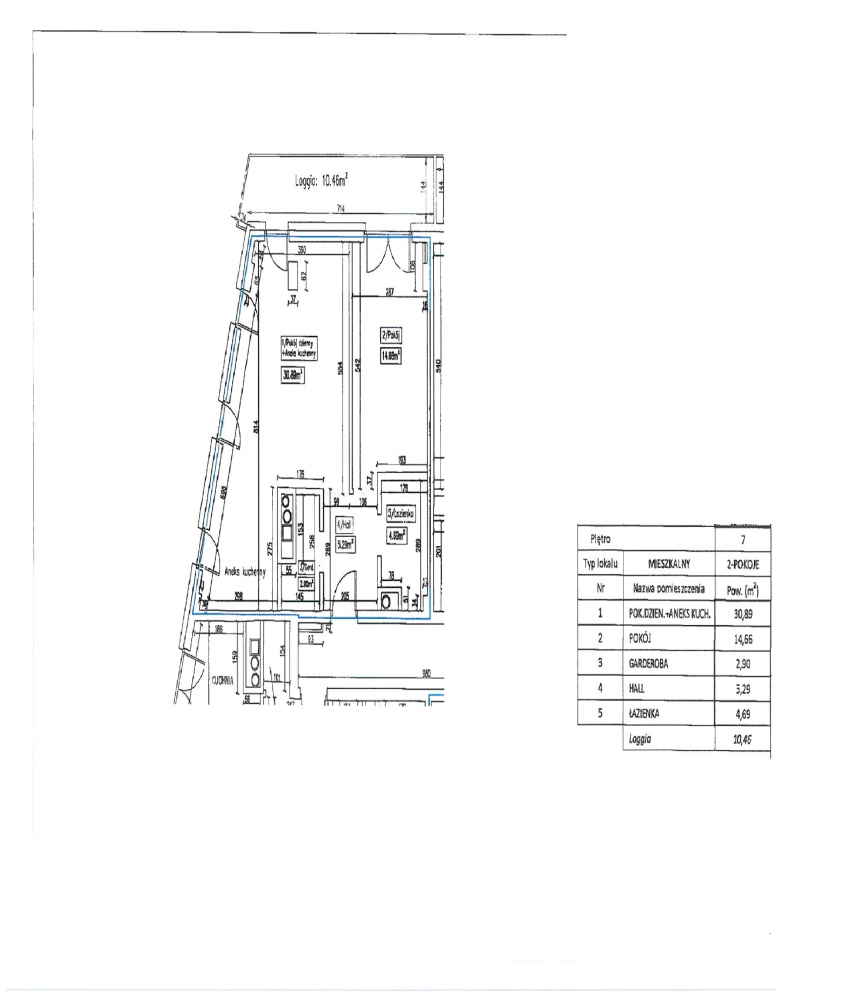
Mam do zaoferowania bezpośrednią sprzedaż dwupokojowego mieszkania o powierzchni 58,5 m2 wraz balkonem oraz miejscem postojowym w garażu podziemnym zlokalizowanego w budynku Point House na Alei Wyścigowej w pobliżu Toru Wyścigów Konnych. Mieszkanie znajduje się na 7 piętrze oraz posiada widok na park. Mieszkanie jest przestronne i jasne dzięki dużym oknom oraz nowoczesnemu sufitowi, który nadaje lustrzany efekt. Okna wyposażone są w automatyczne rolety zewnętrzne. Do mieszkania przynależy duży balkon o powierzchni 10,5 m2. Budynek posiada ochronę i patio z placem zabaw. Lokalizacja zapewnia komfort dzięki dobrej komunikacji miejskiej (blisko pętli tramwajowej i przystanku autobusowego). W pobliżu znajdują się sklepy (w tym Galeria Westfield Mokotów oddalona o 3 km),tereny zielone, restauracje, przedszkola, żłobki oraz Wydział Zarządzania UW. Dogodny dojazd do centrum miasta, na Lotnisko Chopina oraz do trasy S2.
Mieszkanie składa się:
– sypialni z zabudowaną szafą (14,66m2),
– przestronnego i widnego salonu (24 m2),
– kuchni z pełnym wyposażaniem AGD (piekarnik, zmywarka, lodówka, płyta indukcyjna) (7 m2),
– zabudowanej garderoby (3 m2),
– łazienka z kabiną prysznicową typu walk-in, WC, umywalką i pralką (4,7 m2).
Oferta sprzedaży bezpośredniej – bez prowizji. Dodatkowo istnieje możliwość zakupu miejsca postojowego w garażu podziemnym wraz z przynależnym pomieszczeniem gospodarczym za cenę 60 000 zł.
W celu dodatkowych pytań bądź umówienia prezentacji zapraszam do kontaktu.
- Principal and Interest
- Property Tax
- HOA fee

















