Overview
- Updated On:
- 11 kwietnia, 2026
- 35 m2
Description
Oferta bezpośrednia, żadnych prowizji! Szybki internet gratis!
Do wynajęcia komfortowe, wyposażone i umeblowane mieszkanie po kapitalnej renowacji w kamienicy w ścisłym centrum Warszawy. Mieści się w Śródmieściu, w odnowionej kamienicy przy ul. Hożej, w pobliżu skrzyżowania z ul. E. Plater, nieopodal klasztoru Sióstr Franciszkanek i Prokuratorii Generalnej, w atrakcyjnej części dzielnicy śródmiejskiej, tętniącej życiem swych restauracji, klubów i kafejek.
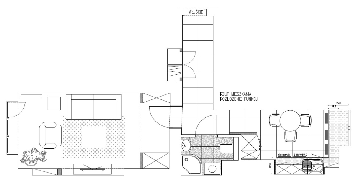
Mieszkanie jest funkcjonalnie zaprojektowane i urządzone, w stylistyce nawiązującej do czasów, z których datuje się ta kamienica. Całość instalacji, wykończenia i wyposażenia była wymieniona kilka lat temu.
Okno salonu i balkon wychodzą na stronę południową, na estetycznie utrzymane i ciche podwórze z rosnącym dużym kasztanowcem, dzięki czemu w ciepłej porze roku jest wyjście na kameralny balkon z widokiem na zieleń. Okno kuchni wychodzi na stronę północną, na ul. Hożą.
Mieszkanie jest całkowicie umeblowane. W salonie (18 m2) znajdują się: duża rozkładana sofa (niepokazana na foto), 2 szafy wkomponowane we wnęki oraz biurko z krzesłem i lampą stojącą (niepokazane na foto). Balkon jest wyposażony w 2 rozkładane fotele i stolik. W kuchni (8 m2) półotwartej na przedpokój znajduje się zabudowa z pełnym wyposażeniem (lodówka z zamrażarką, zmywarka, płyta gazowa, piekarnik elektryczny, wyciąg) oraz stół kuchenny z 2 krzesłami. W przedpokoju (6.5 m2) znajduje się szafa wkomponowana we wnękę oraz wielkie lustro. Łazienka połączona z WC (3 m2) posiada pełnowymiarową kabiną prysznicową, umywalkę, WC, nową pralkę inwerterową oraz szafki łazienkowe. (Uwaga: przedstawiony w załączeniu rzut mieszkania różni się nieznacznie w zakresie umeblowania).
Mieszkanie urządzone z dbałością o detale: dobrej klasy oświetlenie (całość oświetlenia LED), dobór materiałów wykończeniowych i kolorów. Wykończenie i urządzenie zaprojektowane przez profesjonalnego architekta. Podłogi pokryte naturalnym drewnem egzotycznym (merbau) oraz gresem niepolerowanym. Drzwi wejściowe antywłamaniowe Gerda. TV kablowa cyfrowa (podstawowy pakiet Play, z możliwością rozszerzenia) oraz szybki internet z routerem WiFi.
Na życzenie najemcy mieszkanie może zostać ponadto doposażone o:
– duży telewizor OLED/smart tv, wraz z ławą pod telewizor
– odkurzacz, żelazko, deskę do prasowania, składaną suszarkę do odzieży po praniu.
Kamienica w zarządzie małej spółdzielni mieszkaniowej, z bezpieczną, względnie nową windą. Klatka schodowa kilka lat po generalnym remoncie. Fasada budynku po niedawnym ociepleniu i renowacji.
Świetna lokalizacja (ścisłe Śródmieście, wokół pełna infrastruktura miejska), optymalne położenie komunikacyjne (w odległości pieszej Dworzec Centralny, tramwaje, autobusy i metro). Zaplecze handlowe i usługowe, m.in w odległości pieszej centrum handlowe Złote Tarasy, sklepy, poczta, apteka, szpital, przychodnie, banki, restauracje, kluby, salony fryzjerskie, salony piękności).
Doskonała oferta dla wymagających: dla jednej osoby lub pary. Miesięczny czynsz najmu (odstępne) w atrakcyjnej wysokości 3000 zł. Standardowo – dodatkowo płatne:
1/ opłaty eksploatacyjne dla Spółdzielni i ryczałt za zużycie ciepła i wody, ok. 700 zł. plus ewentualne nadwyżki (lub oszczędności) zużycia według wskazań podzielników i liczników
2/ prąd i gaz – według faktycznego zużycia (taryfa prądu G11, EON)
Faktura na całość czynszu i opłat.
Szybki internet GRATIS.
Ubezpieczenie OC najemcy GRATIS.
Wynajem na 1 rok, z możliwością przedłużenia. Kaucja 4000 zł. Weryfikacja najemcy przez specjalistyczną firmę zewnętrzną.
UWAGA DLA AGENCJI POŚREDNICTWA: Ewentualne agencje pośrednictwa zapraszam tylko z konkretnym zainteresowanym najemcą, bez wynagrodzenia z mojej strony. Nie zgadzam się na replikację tego ogłoszenia przez pośredników. Nie jestem zainteresowany współpracą z firmami podnajmującymi krótkoterminowo.
- Principal and Interest
- Property Tax
- HOA fee














