Overview
- Updated On:
- 23 kwietnia, 2026
- 20,761 m2
Description
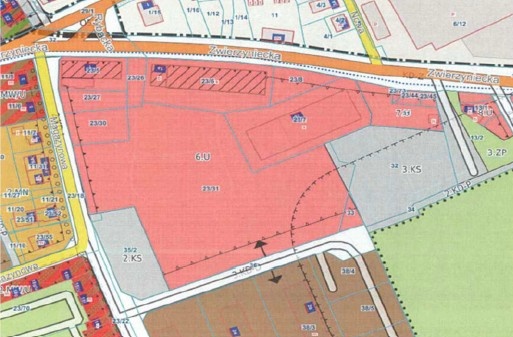
Oferujemy na sprzedaż nieruchomość gruntową zabudowaną budynkiem biurowo-handlowym w granicach działki gruntu nr 23/6 AM62, nieruchomość gruntową zabudowaną budynkiem magazynowym w granicach działki gruntu nr 23/7 AM 62 oraz nieruchomość gruntową niezabudowaną w granicach działki gruntu nr 23/31 AM 62 obręb Oława, miasto Oława.
Infrastruktura dostępna na działce:
· Woda z sieci miejskiej
· Energia elektryczna
· Kanalizacja sanitarna i deszczowa
· Sieć telekomunikacyjna
DLACZEGO WARTO KUPIĆ
· Atrakcyjna lokalizacja w rozwijającej się części Oławy – zapewnia łatwy dostęp do infrastruktury miejskiej oraz dużą widoczność, co jest kluczowe dla działalności gospodarczej.
· Dostępność działki pod dalszą zabudowę – dająca szerokie możliwości adaptacyjne.
· Doskonała infrastruktura – teren jest w pełni uzbrojony w wodę, prąd, kanalizację i sieć telekomunikacyjną, co eliminuje dodatkowe koszty inwestycyjne związane z infrastrukturą.
· Atrakcyjna cena w stosunku do wartości – inwestycja, która oferuje dużą wartość w przeliczeniu na metraż i możliwości rozwoju.
· Potencjał biznesowy – może służyć jako baza dla rozwoju własnej działalności,
Obecnie zmieniany jest plan ogólny dla części działek pod zabudowę wielorodzinną wraz z zabudową wielkopowierzchniową.
Działka jest idealna pod inwestycję. Zainwestuj w Oławie, gdzie rozwija się infrastruktura. Zadzwoń lub napisz, aby umówić się na prezentację!
Powyższa oferta nie stanowi oferty handlowej w rozumieniu art. 66 ust. 1 kodeksu cywilnego do momentu przygotowania oferty ostatecznej i podpisania umowy przedwstępnej.
- Principal and Interest
- Property Tax
- HOA fee














