Overview
- Updated On:
- 26 marca, 2026
- 57 m2
- Year Built: 1980
Description
SPRZEDAŻ PRYWATNA (bez prowizji)
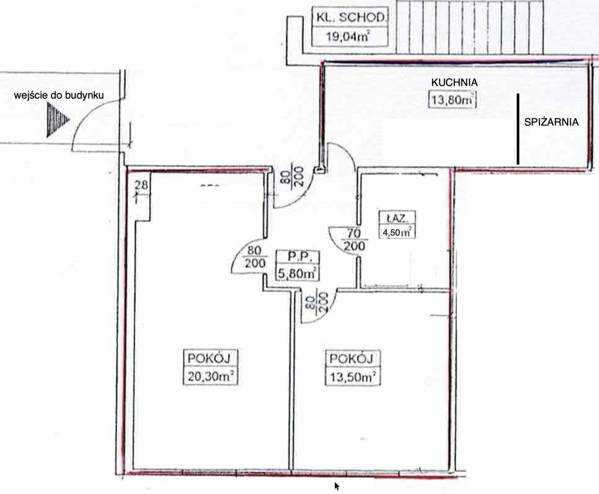
Mieszkanie do remontu na parterze budynku z bardzo łatwym dostępem dla osób niepełnosprawnych. Powierzchnia mieszkalna to 60m2, na które składają się kuchnia ze spiżarnią, przedpokój, łazienka i obecnie trzy pokoje. Pierwotnie mieszkanie było dwupokojowe lecz jeden z pokoi został podzielony na dwa (jeden bez okna służył jako duża garderoba). Ściankę działową można w łatwy sposób usunąć. Oglądanie możliwe każdego dnia.
Energy Class: A+
Energy class A+
A+A
B
C
D
E
F
G
H
Property Id : 195160
Price: 250.000 zł
Property Size: 57 m2
Rooms: 3
Year Built: 1980
Other Features
Blok
piętro: 0/4
rok budowy: 1980
rynek:
1,281.80 zł
per month- Principal and Interest
- Property Tax
- HOA fee
969.30 zł
wt.
14
kwi
śr.
15
kwi
czw.
16
kwi
pt.
17
kwi
sob.
18
kwi
niedz.
19
kwi
pon.
20
kwi
wt.
21
kwi
śr.
22
kwi
czw.
23
kwi
Your information
Property Reviews
zzzWrite a Review
Similar Listings
Mieszkanie 2-pokojowe w centrum
51 m2
Oferujemy do sprzedaży 2-pokojowe mieszkanie o powierzchni 50,9 m2 usytuowane na II piętrze w niskim ...
Nowoczesne mieszkanie 4-pokojowe z balkonem
90 m2
Spółka LOCUS HOME to DEWELOPER który realizuje inwestycje mieszkaniowe na terenie Katowic od wielu l ...
Nowoczesne 2-pokojowe mieszkanie z balkonem ...
50 m2
Cena w ogłoszeniu dotyczy mieszkania dwupokojowego na pierwszym piętrze budynku: M 1.6 – 50,16 m² ...
Nowoczesne 4-pokojowe mieszkanie z balkonem
85 m2
Cena w ogłoszeniu dotyczy mieszkania czteropokojowego na pierwszym piętrze budynku: M 1.7 – 84 ...


























